Ängegärde är Kungälvs kommuns nya moderna vård- och omsorgsboende där vård- och omsorgsboende, korttidsboende och hemtjänst samlas under samma tak för en trygg och sammanhållen omsorgsmiljö.
Sju omsorgsenheter med olika inriktningar
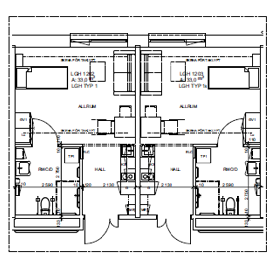
Lägenheter: 10 per enhet, möjlighet till parboende. 33–35 m², anpassade för komfort och självständighet.
Utrustning:
- Pentry (kyl, induktionshäll)
- Tvättmaskin och torktumlare
- Anpassat badrum
- Förberedelse för tillsynskamera
- Fiber
Gemensamma utrymmen
- Samvarorum och matsal
- Två uteplatser per enhet (öppen och inglasad)
- Aktivitetsrum på alla våningar
- Träffpunkt högst upp i huset
- Takterrass för sociala aktiviteter
Utemiljö
Promenadväg runt hela boendet som möjliggör trygg rörelse och utevistelse.
Interiör - vanlig lägenhet
Skisser

Parlägenhet med dörr emellan

Vanlig lägenhet

Utemiljö